
Bjørnafjorden kommunestyre gjorde i møtet den 19. februar 2026 følgjande vedtak:
Bjørnafjorden kommunestyre vedtar framlegg til detaljregulering for Flåten - Varåsen, 54/582, frå offentleg til bustad, med plankart datert 31.12.2025 og føresegn datert 16.07.2025. Vedtaket er gjort med heimel i plan- og bygningslova §12-12 fyrste avsnitt, jf. § 1-5.
Kommunestyret sitt endelege vedtak om reguleringsplan kan klagast på, jf. pbl. § 12-12, tredje avsnitt, jf. § 1-9m jf. fvl. § 28.
I samsvar med fvl. § 27 b, blir det bestemt at søksmål om gyldigheita av vedtaket eller krav om skadebot som følgje av vedtaket, ikkje skal kunne reisast utan at part har nytta sitt høve til å klage over vedtaket, og at klagen er oppe og avgjort av den høgaste klageinstansen som står open.
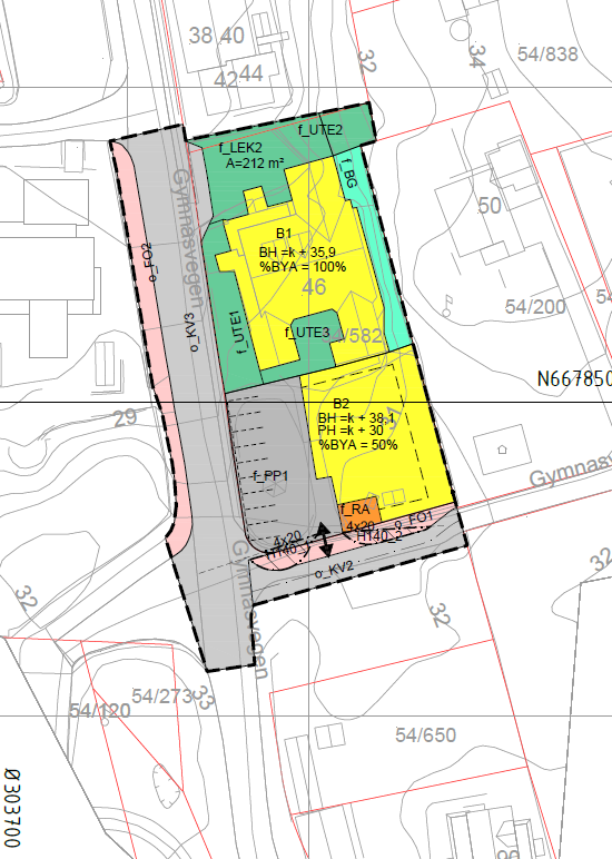
Planen legg til rette for ei formålsendring frå offentleg tenesteyting til bustadføremål. Det eksisterande bygget på eigedomen skal ombrukast og regulerast frå barnehage til bustad, med inntil 5 leilegheiter. I tillegg skal det etablerast ein ny firemannsbustad sør i planområdet. Det vil derfor etablerast totalt 9 nye bueiningar i området.
Planen regulerer videre areal til, offentlig kjøreveg og fortau, lekeplass, felles uteoppholdsareal, parkering og renovasjon.
Sjå saksdokument her
Sjå kart her
Frist for å klage er den 9. april 2026.
Klagen skal vera skriftleg og sendast til:
Bjørnafjorden kommune, Postboks 24, 5649 Eikelandsosen eller post@bjornafjorden.kommune.no
Ver venleg å vis til saksnummer 24/5286.